Download Inhoudsopgave Inhoud Print deze pagina

AEG RDB424E1AW Gebruiksaanwijzing pagina 51

Verberg thumbnails Zie ook voor RDB424E1AW:
Inhoudsopgave
Beschikbare talen

Beschikbare talen

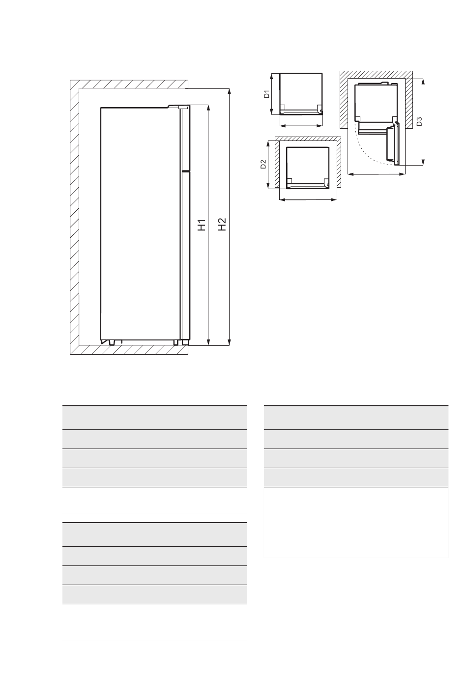
3.1 Abmessungen
Gesamtabmessungen
H1
mm
W1
mm
D1
mm
1) Höhe, Breite und Tiefe des Geräts ohne Griff
und Füße
Platzbedarf im Betrieb
H2
mm
W2
mm
D2
mm
1) Höhe, Breite und Tiefe des Geräts einschließ-
lich Griff und zuzüglich des notwendigen Frei-
raums für die Zirkulation der Kühlluft
1)
1434
550
547
1)
1534
750
617
W1
W2
Platzbedarf insgesamt im Betrieb
H2
mm
W3
mm
D3
mm
1) Höhe, Breite und Tiefe des Geräts einschließ-
lich Griff plus des notwendigen Freiraums für die
Zirkulation der Kühlluft, zuzüglich des Platzes, der
notwendig ist, um eine Türöffnung bis zu dem mi-
nimalen Winkel zu ermöglichen, der die Entfer-
nung der Innenausstattung erlaubt
3.2 Standort
Um die beste Funktionalität des Gerätes
zu gewährleisten, sollten Sie das Gerät
nicht in der Nähe von Wärmequellen
(Backöfen, Heizöfen, Heizkörpern,
Herden oder Kochfeldern) oder an einem
DEUTSCH
51
W3
1)
1534
750
1123

Hoofdstukken

Inhoudsopgave
loading

Deze handleiding is ook geschikt voor:

Rdb424f1awRdb424e1axRds824ecawRds824exaw

Inhoudsopgave