Download Inhoudsopgave Inhoud Print deze pagina

Daikin Altherma 3 R W Series Uitgebreide Handleiding Voor De Installateur pagina 101

Inhoudsopgave
ERGA04~08E + EHBH/X04+08E
Daikin Altherma 3 R W
4P629085-1D – 2023.05
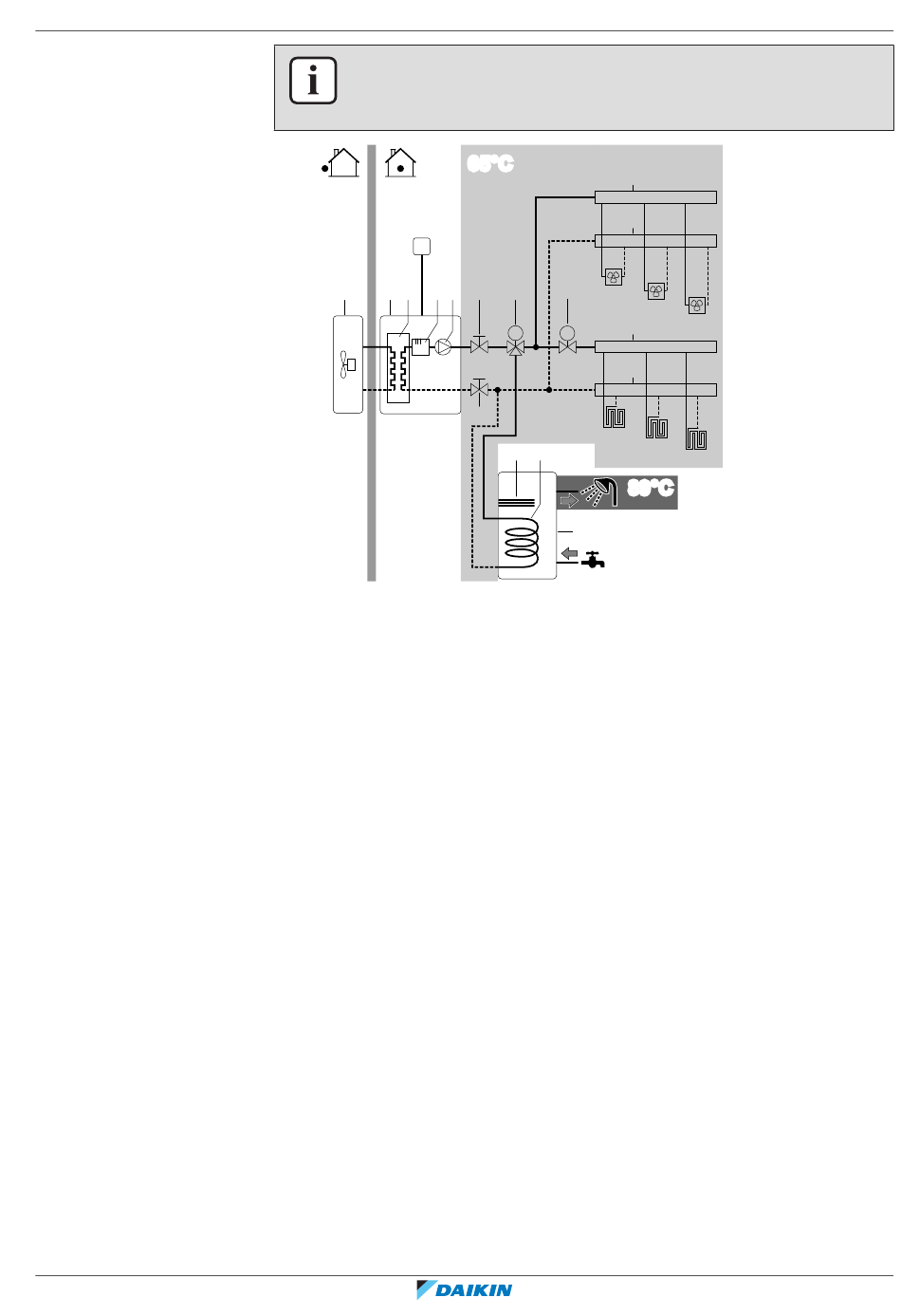
INFORMATIE
De volgende afbeelding is slechts een voorbeeld en komt mogelijk NIET volledig
overeen met de lay-out van uw systeem.
T
a
b
c
d e
a Buitenunit
b Binnenunit
c Warmtewisselaar
d Back-upverwarming
e Pomp
f Afsluiter
g Gemotoriseerde 3-wegklep (geleverd bij de tank voor warm tapwater)
h Gemotoriseerde 2-wegklep (ter plaatse te voorzien)
i Verdeelstuk
j Warmtapwatertank
k Warmtewisselaarspoel
l Boosterverwarming
FCU1...3 Ventilatorconvector (optie) (ter plaatse te voorzien)
FHL1...3 Vloerverwarmingslus (ter plaatse te voorzien)
T Kamerthermostaat (optie) (ter plaatse te voorzien)
Aftappen – Lage punten. Voorzie aftappunten op alle lage punten van de
installatie om het watercircuit volledig te kunnen aflaten.
Aftappen – Overdrukveiligheidsklep. Sluit de afvoerslang correct aan op de
afvoer om te voorkomen dat er water uit de unit wordt gemorst. Zie
afvoerslang op de afvoer
Ontluchtingspunten. Voorzie ontluchtingspunten op alle hoge punten van de
installatie; deze punten moeten voor onderhoud gemakkelijk bereikbaar zijn. De
binnenunit is voorzien van twee automatische ontluchtingskleppen. Controleer
of deze ontluchtingskleppen NIET te hard zijn vastgedraaid, zodat het
watercircuit automatisch ontlucht kan worden.
Onderdelen met een zinklaag. Gebruik NOOIT onderdelen met een zinklaag in
het watercircuit. Aangezien het interne watercircuit in de unit uit koperen buizen
bestaat, kan anders overmatige corrosie optreden.
Niet-koperen metalen leidingen. Wanneer ook niet-koperen metalen leidingen
gebruikt worden, isoleer dan elke koperen leiding goed van elke niet-koperen
leiding, zodat ze NIET met elkaar in contact kunnen komen. Dit, om galvanische
corrosie te vermijden.
8
|
65°C
i
i
h
f
g
FCU1
i
M
M
i
f
FHL1
l
k
89°C
j
4
aansluiten" [
 84].
Installatie van de leidingen
FCU2
FCU3
FHL2
FHL3
Uitgebreide handleiding voor de installateur
"7.4.4  De
101
Inhoudsopgave
loading

Deze handleiding is ook geschikt voor:

Erga04e v3 seriesErga06e v3h seriesErga08e v3h seriesErga04e v3a seriesErga06e v3a seriesErga08e v3a series ... Toon alles

Inhoudsopgave