Download Inhoudsopgave Inhoud Print deze pagina

Transmissiebedrading Voltooien; Voeding Routeren En Bevestigen; Voeding Aansluiten - Daikin Ryyq8T7Y1B Series Montagehandleiding En Gebruiksaanwijzing

Inhoudsopgave
5 Installatie
Aanhaalmoment van de klemmen van de transmissiebedrading:
Schroefmaat
M3,5 (A1P)
Installatie met één buitenunit
A1P
F
F
F
F
Q
Q
F1
F2
F1
F2 Q1 Q2
1
2
1
2
1
2
TO IN/D UNIT TO OUT/D UNIT TO MULTI UNIT
e
a
F1 F2
F1 F2
b
c
F1 F2
F1 F2
a
Printplaat buitenunit (A1P)
b
Gebruik de geleider van een mantelkabel (2-dradig) (geen
polariteit)
c
Klemmenstrook (lokaal te voorzien)
d
Binnenunit
e
Buitenunit
Installatie met meerdere buitenunits
a
b
A1P
F1 F2 F1 F2 Q1 Q2
Q1 Q2
f
e
d
a
Unit A (master-buitenunit)
b
Unit B (slave-buitenunit)
c
Unit C (slave-buitenunit)
d
Transmissie master/slave (Q1/Q2)
e
Transmissie buiten/binnen (F1/F2)
f
Transmissie buitenunit/ander systeem (F1/F2)
▪ De bedrading tussen de buitenunits in hetzelfde leidingsysteem
moet worden aangesloten op de klemmen Q1/Q2 (Out Multi). Als
de draden op de klemmen F1/F2 worden aangesloten, zal het
systeem slecht werken.
▪ De bedrading voor de andere systemen moet worden aangesloten
op de klemmen F1/F2 (Out-Out) van de printplaat in de buitenunit
waarop de bedrading tussen de binnenunits is aangesloten.
▪ De basisunit is de buitenunit waarop de onderlinge bedrading
tussen de binnenunits is aangesloten.
5.7.5

Transmissiebedrading voltooien

Omwikkel de transmissiebedrading na de installatie ervan in de unit,
samen met de lokale koelmiddelleidingen met behulp van
afwerkingstape, zoals hierna afgebeeld.
a
c
b
e
d
a
Vloeistofleiding
b
Gasleiding
c
Isolatie
d
Transmissiebedrading (F1/F2)
e
Afwerkingstape
Montagehandleiding en gebruiksaanwijzing
26
Aanhaalmoment (N•m)
0,80~0,96
d
F1 F2
F1 F2
c
Q1 Q2
d
5.7.6

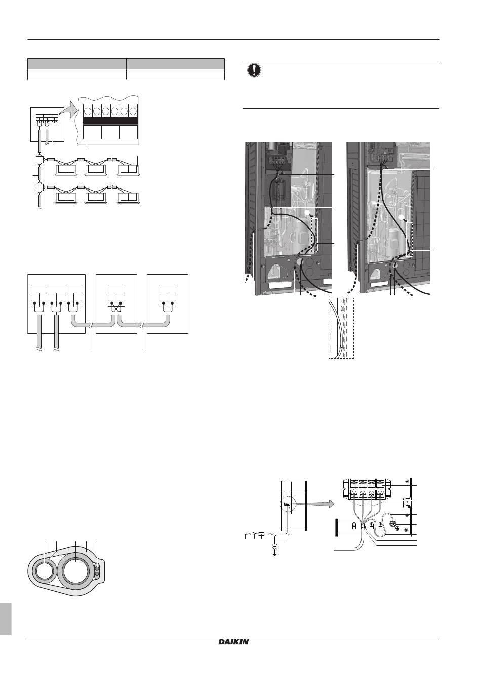
Voeding routeren en bevestigen

OPMERKING
Houd de aardingskabels op minstens 25  mm van de
stroomdraden van de compressor. Anders kunnen andere
units die op dezelfde aarding zijn aangesloten slecht
werken.
De voedingsbedrading kan via de voorkant en de linkerkant worden
geleid. Maak het vast aan het onderste montagegat.
8~12 HP
X1M
A
c
b
a
A
a
Voeding (mogelijkheid 1)
b
Voeding (mogelijkheid 2)
c
Voeding (mogelijkheid 3)
d
Kabelbinder
(a)
Uitbreekopening vrijmaken. Sluit de opening af om te
voorkomen dat kleine dieren of vuil binnendringen.
5.7.7

Voeding aansluiten

Klem de voedingskabel met lokaal voorziene klemmen vast op de
plastic beugel.
De groen en geel gestreepte draad mag alleen worden gebruikt voor
de aarding (zie de afbeelding hierna).
8~12 HP
a
c
b
d
14~20 HP
X1M
d
d
A
d
c
b
a
(a)
(a)
(a)
. Gebruik een mantelbuis.
e
f
g
j
k
h
i
RYYQ+RYMQ+RXYQ8~20T7Y1B
VRV IV-systeem airconditioner
4P370473-1D – 2016.11
d
d
Inhoudsopgave
loading

Inhoudsopgave