Download Inhoudsopgave Inhoud Print deze pagina

Installatie Veilige Stop; Test Voor Inbedrijfstelling Veilige Stop - Danfoss Fc 300 Series Gebruikershandleiding

Verberg thumbnails Zie ook voor FC 300 Series:
Inhoudsopgave
FC 300 Design Guide

Installatie veilige stop

"
Volg onderstaande instructies om een
installatie van een stop volgens Categorie 0
(EN602204) uit te voeren overeenkomstig
veiligheidscategorie 3 (EN954-1):
1.
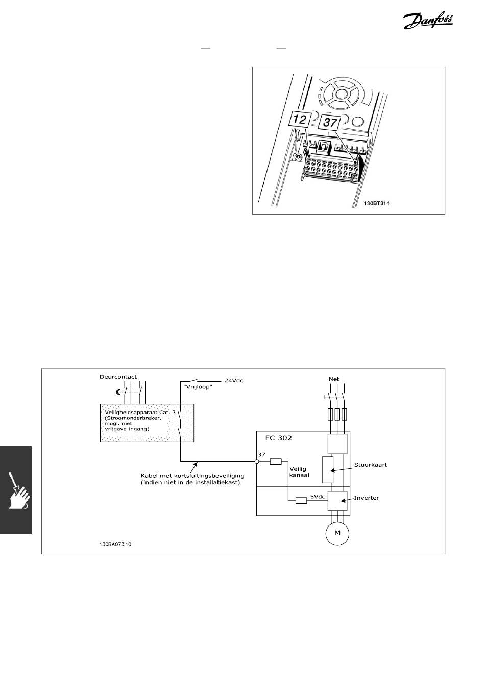
De geleiderbrug tussen klem 37 en 24 V
DC moet worden verwijderd. Het is niet
voldoende om de geleiderbrug door te snijden
of te breken. Verwijder de brug in het
geheel om kortsluiting te voorkomen. Zie
de geleiderbrug op de afbeelding.
Klem 37 moet aangesloten worden op 24 V
2.
DC door middel van een tegen kortsluiting
beschermde kabel. De 24 V DC-spanning moet
te onderbreken zijn via een stroomonderbreker
die voldoet aan EN954-1 Categorie 3. Als
de onderbreker en de frequentieomvormer
in hetzelfde installatiepaneel zijn bevestigd,
kan een gewone kabel worden gebruikt in
plaats van een beschermde kabel.
De onderstaande afbeelding toont een stopcategorie 0 (EN 60204-1) met veiligheidscat. 3 (EN
954-1). De stroomonderbreking wordt uitgevoerd door een opendeurcontact. De afbeelding toont
ook de aansluiting met een hardwarevrijloop die niet op veiligheid is berust.
Weergave van de belangrijkste aspecten van een installatie voor stopcategorie 0 (EN
60204-1) met veiligheidscat. 3 (EN 954-1).

Test voor inbedrijfstelling veilige stop

"
Na installatie en voor ingebruikneming, moet een inbedrijfstellingstest worden uitgevoerd op de
installatie of toepassing die gebruik maakt van de FC 300 Veilige stop.
72
Installeren
MG.33.B2.10 - VLT is een geregistreerd handelsmerk van Danfoss
Geleiderbrug tussen klem 37 en 24 V DC.
Inhoudsopgave
loading

Inhoudsopgave