Download Inhoudsopgave Inhoud Print deze pagina

De Koelleidingen Isoleren; Aansluitingen Van De Koelmiddelleidingen; De Koelmiddelleidingen Op Binnenunit Aansluiten; De Waterleidingen Voorbereiden - Daikin Altherma 3 R W Ehbh04Ef6V Installatiehandleiding

Verberg thumbnails Zie ook voor Altherma 3 R W EHBH04EF6V:
Inhoudsopgave
5 Installatie van de leidingen
5.1.2

De koelleidingen isoleren

▪ Neem polyethyleenschuim als isolatiemateriaal:
▪ met een warmteoverdrachtsfactor begrepen tussen 0,041 en
0,052 W/mK (0,035 en 0,045 kcal/mh°C)
▪ bestand tegen minstens 120°C
▪ Isolatiedikte
Buitendiameter van
Binnendiameter van
de buizen (Ø
)
de isolatie (Ø
p
6,4 mm (1/4")
8~10 mm
15,9 mm (5/8")
16~20 mm
Ø
Ø
i
i
Ø
Ø
p
p
t
Als de temperatuur hoger is dan 30°C en de vochtigheid meer
dan  80% bedraagt, moet het isolatiemateriaal minstens 20  mm dik
zijn om condensatie aan de oppervlakte van de isolatie te
voorkomen.
5.2
Aansluitingen van de
koelmiddelleidingen
Raadpleeg de installatiehandleiding van de buitenunit voor alle
richtlijnen, specificaties en installatie-instructies.
5.2.1
De koelmiddelleidingen op binnenunit
aansluiten
1 Sluit de vloeistofafsluiter komende van de buitenunit aan op de
koelvloeistofaansluiting van de binnenunit.
a
Aansluiting voor de koelvloeistof
b
Aansluiting voor het koelgas
2 Sluit de gasafsluiter komende van de buitenunit aan op de
koelgasaansluiting van de binnenunit.
5.3

De waterleidingen voorbereiden

OPMERKING
Wanneer kunststofleidingen worden gebruikt, zorg ervoor
dat
deze
zuurstofdiffusiedicht
DIN  4726. De diffusie van zuurstof naar de leidingen kan
overmatige corrosie veroorzaken.
OPMERKING
Vereisten voor de watercircuits. Zorg dat aan de
onderstaande
vereisten
watertemperatuur
is
handleiding voor de installateur voor bijkomende vereisten
voor de watercircuits.
Installatiehandleiding
12
Isolatiedikte (t)
)
i
10 mm
13 mm
b
a
zijn
overeenkomstig
voor
waterdruk
en
voldaan.
Zie
de
uitgebreide
▪ Waterdruk
Ruimteverwarming/-koelingscircuit.
maximumwaterdruk bedraagt 3  bar. Voorzie gepaste veiligheden
in het watercircuit om ervoor te zorgen dat de maximumdruk NIET
overschreden wordt. De waterdruk moet minstens 1 bar bedragen
om te werken.
▪ Watertemperatuur.
Alle
leidingtoebehoren (kleppen, verbindingsstukken enz.) DIENEN
bestand te zijn tegen de volgende temperaturen:
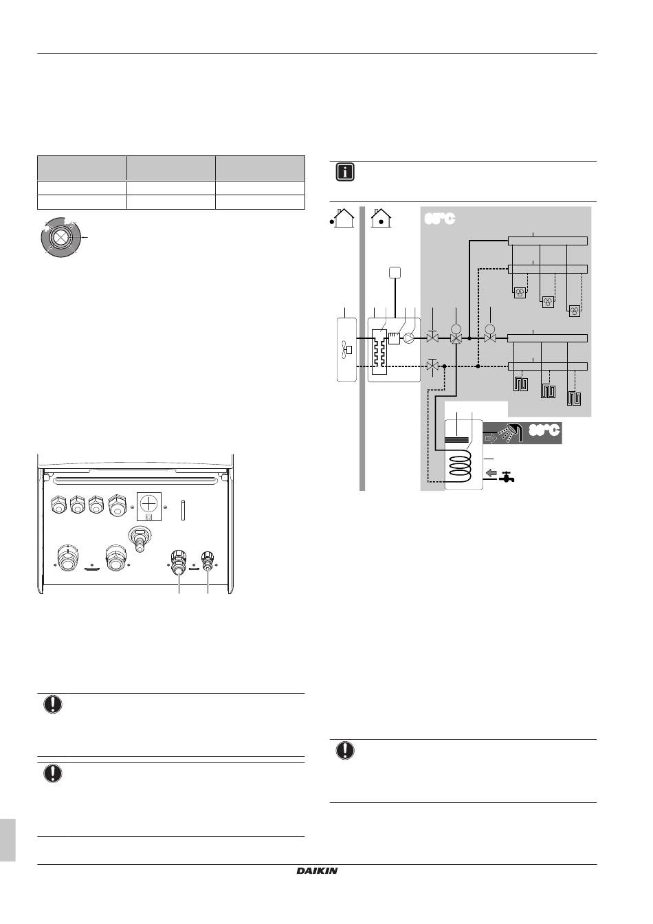
INFORMATIE
De volgende afbeelding is een voorbeeld en stemt mogelijk
NIET overeen met de lay-out van uw installatie.
65°C
T
a
b
c
d e
f
M
f
a
Buitenunit
b
Binnenunit
c
Warmtewisselaar
d
Back-upverwarming
e
Pomp
f
Afsluiter
g
Gemotoriseerde 3-wegklep (geleverd bij de tank voor
warm tapwater)
h
Gemotoriseerde 2-wegklep (ter plaatse te voorzien)
i
Verdeelstuk
j
Warmtapwatertank
k
Warmtewisselaarspoel
l
Boosterverwarming
FCU1...3
Ventilatorconvector (optie) (ter plaatse te voorzien)
FHL1...3
Vloerverwarmingslus (ter plaatse te voorzien)
T
Kamerthermostaat (optie) (ter plaatse te voorzien)
5.3.1
Het watervolume en waterdebiet
controleren
Minimum watervolume
Controleer of het totale watervolume in de installatie minimum
10  liter bedraagt, waarbij het watervolume in de binnenunit NIET
inbegrepen is.
OPMERKING
Wanneer
de
circulatie
koelingslus geregeld wordt door op afstand bediende
kleppen, is het belangrijk dat dit minimum watervolume
behouden blijft, zelfs wanneer alle kleppen dicht zijn.
geplaatste
leidingen
i
i
h
g
FCU1
FCU2
FCU3
i
M
i
FHL1
FHL2
l
k
FHL3
89°C
j
in
elke
ruimteverwarming-/
EHBH/X04+08EF
Daikin Altherma 3 R W
4P642727-1A – 2021.11
De
en
Inhoudsopgave
loading

Inhoudsopgave