Download Inhoudsopgave Inhoud Print deze pagina

Opdeling Cv-Installatie In Groepen Bij Aanwezigheid Extra Warmtebron; Werkingsprincipe; Installatievoorschrift - Daikin Rotex Gw-20 C22 Installatievoorschrift

Inhoudsopgave
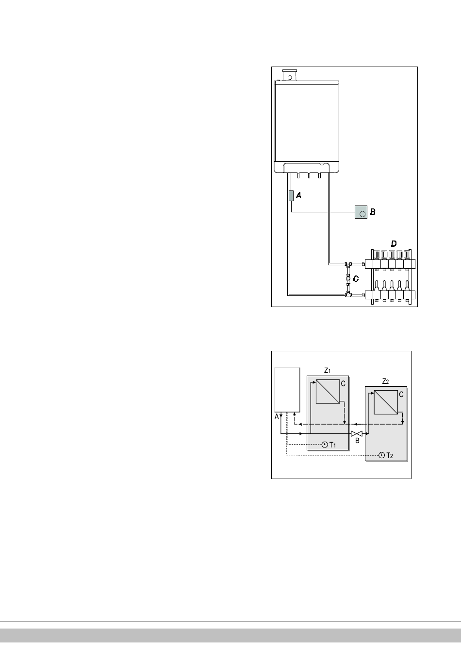
Vloerverwarmingsverdeler zonder pomp
Sluit het vloerverwarmingssysteem (D) aan en stel de maximale cv-
aanvoertemperatuur van de ketel in op de ontwerpconditie. Monteer op de
aanvoerbuis onder de ketel een klemthermostaat (A). De klemthermostaat met blinde
kap dient ingesteld te worden op een maximale aanvoertemperatuur van 55°C.
Monteer de aan/uit kamerthermostaat (B) en sluit deze in serie met de
klemthermostaat aan op connector X4 - 6/7 in het toestel. Zie § 10.1.
De pomp in de ketel wordt in deze situatie benut om het drukverlies van het
vloerverwarmingssysteem te overbruggen. Met behulp van de drukverliesgrafiek § 7.4
is het maximale drukverlies van het vloerverwarmingssysteem te bepalen.
Zorg voor een minimale watercirculatie. Zie § 7.3. Plaats eventueel een by-pass
ventiel (C).
Het is bij een vloerverwarmingssysteem zonder pomp aan te bevelen om
onderstaande
parameter instellingen te wijzigen:
par. o van 0 naar 3.
par. P van 5 naar 2.
Tevens dient parameter 3 te worden ingesteld op minimaal niveau of het
transmissieverlies van de woning.
5.1.3
Opdeling CV-installatie in groepen bij aanwezigheid extra
warmtebron

Werkingsprincipe

Indien de kamerthermostaat de ketel uitschakelt doordat een andere
verwarmingsbron (houtkachel, open haard, etc) de ruimte opwarmt, is het mogelijk dat
de overige ruimten afkoelen. Dit kan worden opgelost door de CV-installatie op te
delen in twee zones. De zone met de externe warmtebron (Z2) kan middels een
elektrische afsluiter worden afgesloten van het hoofdcircuit. Beide zones worden
voorzien van een eigen kamerthermostaat.
N.B. Deze regeling "externe warmtebron" kan alleen worden toegepast indien geen
externe tank hoeft te worden opgewarmd (installatietype 1).

Installatievoorschrift

1.
Plaats de afsluiter volgens het aansluitschema.
2.
Sluit de kamerthermostaat van zone 1 aan op X4 – 6/7.
3.
Sluit de kamerthermostaat van zone 2 aan X4 – 11/12.
4.
Wijzig parameter A (zie Parameter instellingen via de servicecode § 7.2).
Let op: De kamerthermostaat in zone 1
kamerthermostaat in zone 2 mag zowel een OpenTherm thermostaat als ook een
aan/uit thermostaat zijn.
Aansluitschema regeling "externe warmtebron"
A.
Ketel
B.
Elektrische afsluiter 230 V ~
C.
Radiatoren
T1.
Kamerthermostaat zone 1
T2.
Kamerthermostaat zone 2
Z1.
Zone 1
Z2.
Zone 2
ROTEX Heating Systems GmbH
een aan/uit thermostaat zijn, de
MOET
16
Inhoudsopgave
loading

Inhoudsopgave