Download Inhoudsopgave Inhoud Print deze pagina

Binneneenheid Met Mengventiel Voor Externe Bijverwarming - Binneneenheid Met 3-Fasige Buiteneenheid - Bosch Odu Split 4 Installatiehandleiding

Verberg thumbnails Zie ook voor ODU Split 4:
Inhoudsopgave
8.3.5
Binneneenheid met mengventiel voor externe bijverwarming – binneneenheid met 3-fasige buiteneenheid
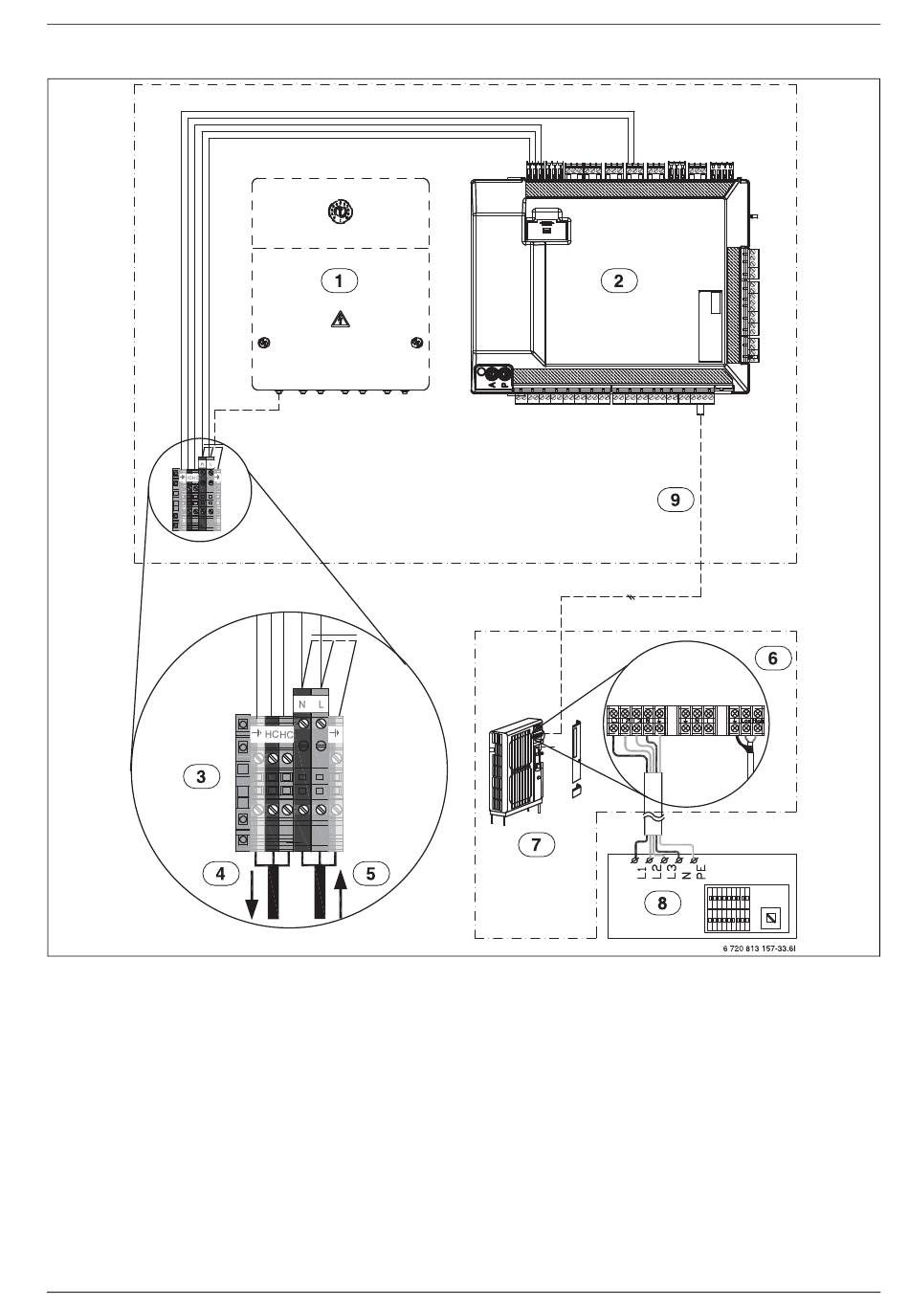
Afb. 34 Binneneenheid met 3-fasige buiteneenheid
Doorgaande lijn = af fabriek aangesloten
Stippellijn = aansluiting bij installatie:
[1]
EMS-module (toebehoren)
[2]
Installatiepaneel
[3]
Aansluitklemmen binneneenheid
[4]
Voedingsspanning voor verwarmingskabel (230 V, ~1 N)
[5]
Ingangsspanning 230 V, ~1N
[6]
Aansluitklemmen buiteneenheid
[7]
Buiteneenheid
[8]
Zekeringkast in buiteneenheid (400 V,~3N)
[9]
CAN-BUS
ODU Split – 6721823294 (2020/06)
Elektrische aansluiting
25
Inhoudsopgave
loading

Inhoudsopgave