Download Inhoudsopgave Inhoud Print deze pagina

Technische Gegevens; Schema Van De Leidingen: Buitenunit - Daikin Erga04Dav3 Handleiding

Inhoudsopgave
14
|

Technische gegevens

14 Technische gegevens

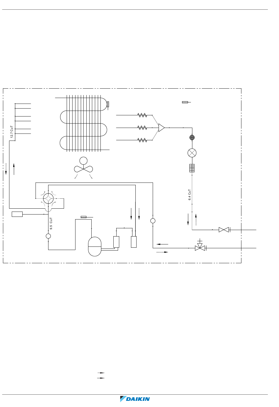
14.1 Schema van de leidingen: Buitenunit

7.0 CuT
7.0 CuT
7.0 CuT
7.0 CuT
7.0 CuT
7.0 CuT
Y1S
S1PH
k
9.5 CuT
Uitgebreide handleiding voor de installateur
202
Een subset van de meest recente technische gegevens is beschikbaar op de
regionale website van Daikin (publiek toegankelijk). De volledige set meest recente
technische gegevens is beschikbaar op de Daikin Business Portal (authenticatie
vereist).
h
R2T
4.0 CuT
4.0 CuT
4.0 CuT
M1F
12.7 CuT
12.7 CuT
R3T
12.7 CuT
j
i
M1C
a Ter plaatse te voorziene leiding (vloeistof: getrompte verbinding van Ø6,4 mm)
b Ter plaatse te voorziene leiding (gas: getrompte verbinding van Ø15,9 mm)
c Afsluiter (vloeistof)
d Afsluiter met onderhoudspoort (gas)
e Filter
f Geluiddemper met filter
g Capillaire buis
h Warmtewisselaar
i Accumulator
j Compressor accumulator
k Geluiddemper
M1C Compressor
M1F Ventilator
R1T Thermistor (buitenlucht)
R2T Thermistor (warmtewisselaar)
R3T Thermistor (compressorafvoer)
S1PH Hogedrukschakelaar (automatische reset)
Y1E Elektronische expansieklep
Y1S Elektromagnetische klep (4‑wegsklep) (AAN: koeling)
Verwarming
Koeling
R1T
g
g
6.4 CuT
6.4 CuT
g
f
Y1E
e
k
6.4 CuT
15.9 CuT
d
ERGA04~08DAV3(A) + EHVZ04+08S18+23DA6V+9W7
c
a
6.4 CuT
b
15.9 CuT
3D110394
Daikin Altherma 3 R F
4P618957-1 – 2020.03
Inhoudsopgave
loading

Inhoudsopgave