Download Inhoudsopgave Inhoud Print deze pagina

Binneneenheid Aansluiten - Bosch Compress 3400I Aws Installatiehandleiding

Binneneenheid voor lucht-water-warmtepomp
Verberg thumbnails Zie ook voor Compress 3400i AWS:
Inhoudsopgave
Installatie
5.6.1

Binneneenheid aansluiten

▶ Verwijder het frontpaneel van de binnenunit.
▶ Afdekking van de aansluitdoos verwijderen.
▶ Plaats de CAN-BUS, sensoren en andere signaalcircuitkabels door de
betreffende kabeldoorvoeren, gemarkeerd met <50 V. Installeer de
kabels tot deze het front van het toestel bereiken en sluit deze aan
conform afb. 10.
▶ Plaats de voedingscircuitkabels door de wartels gemarkeerd met
230 V/400 V. Installeer de kabels tot deze het front van het toestel
bereiken.
▶ Sluit de voedingskabels aan op de betreffende klemmenblokken zo-
als gespecificeerd in hoofdstuk 5.6.7.
▶ Bevestig de kabelbinders.
▶ Controleer of alle elektrische kabels correct en veilig zijn aangesloten
en plaats vervolgens het deksel op de aansluitdoos en het frontpa-
neel van de binneneenheid.
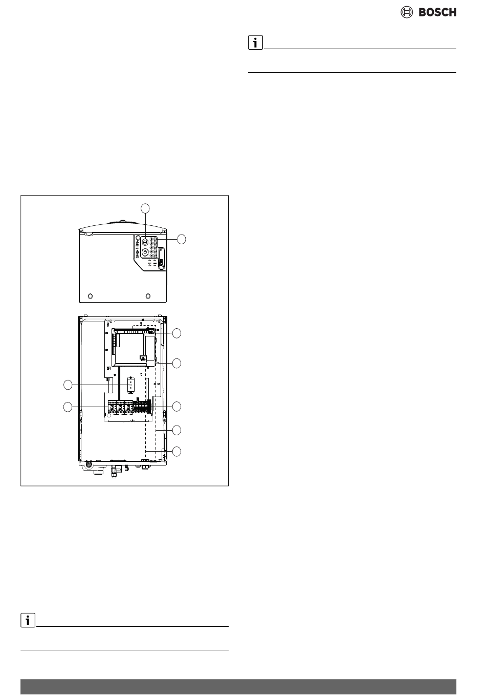
8
9
Afb. 10 Kabeldoorvoeren (onder- en vooraanzicht)
[1]
Kabeldoorvoer voor stroomvoorziening (230 V/400 V)
[2]
Kabeldoorvoer voor sensor, CAN-BUS, EMS BUS- en signaalka-
bels (<50V )
[3]
Installatiemodule
[4]
Steun voor kabelbinders
[5]
Klemmenblokken
[6]
Kabelcircuit voor sensor, CAN-BUS, EMS BUS- en signaalkabels
(<50 V)
[7]
Kabelcircuit voor stroomvoorziening (230 V/400 V)
[8]
Oververhittingsbeveiliging (OHP)
[9]
Relais 1, 2 en 3 voor elektrische bijverwarming
Waarborg bij het installeren van de elektrische kabels binnen en buiten
de aansluitdoos, dat deze niet te strak staan.
16
1
2
3
4
5
6
7
0010038297-001
Signaalkabels en voedingskabels mogen niet in dezelfde kabeldoorvoer
liggen.
Compress 3400i AWS – 6721827930 (2024/03)
Inhoudsopgave
loading

Deze handleiding is ook geschikt voor:

Cs3400iaws 10 e

Inhoudsopgave