Download Inhoudsopgave Inhoud Print deze pagina

Schakelschema; Installatiemodule Of Binneneenheid Met Geïntegreerde Elektrische Bijverwarming - Bosch Compress 3400I Aws Installatiehandleiding

Binneneenheid voor lucht-water-warmtepomp
Verberg thumbnails Zie ook voor Compress 3400i AWS:
Inhoudsopgave
11.4

Schakelschema

11.4.1 Installatiemodule of binneneenheid met geïntegreerde elektrische bijverwarming
GEVAAR
Risico door elektrische schok!
Openen van de installatiemodule kan lichamelijk letsel door elektrische
schokken veroorzaken.
▶ Open de installatiemodule nooit.
T0
T1
TW1
TC0
TC1
TC3
I1
I4
TR3
EMS bus
HMI bus
Service Tools
BB tool
2
3
CAN-BUS
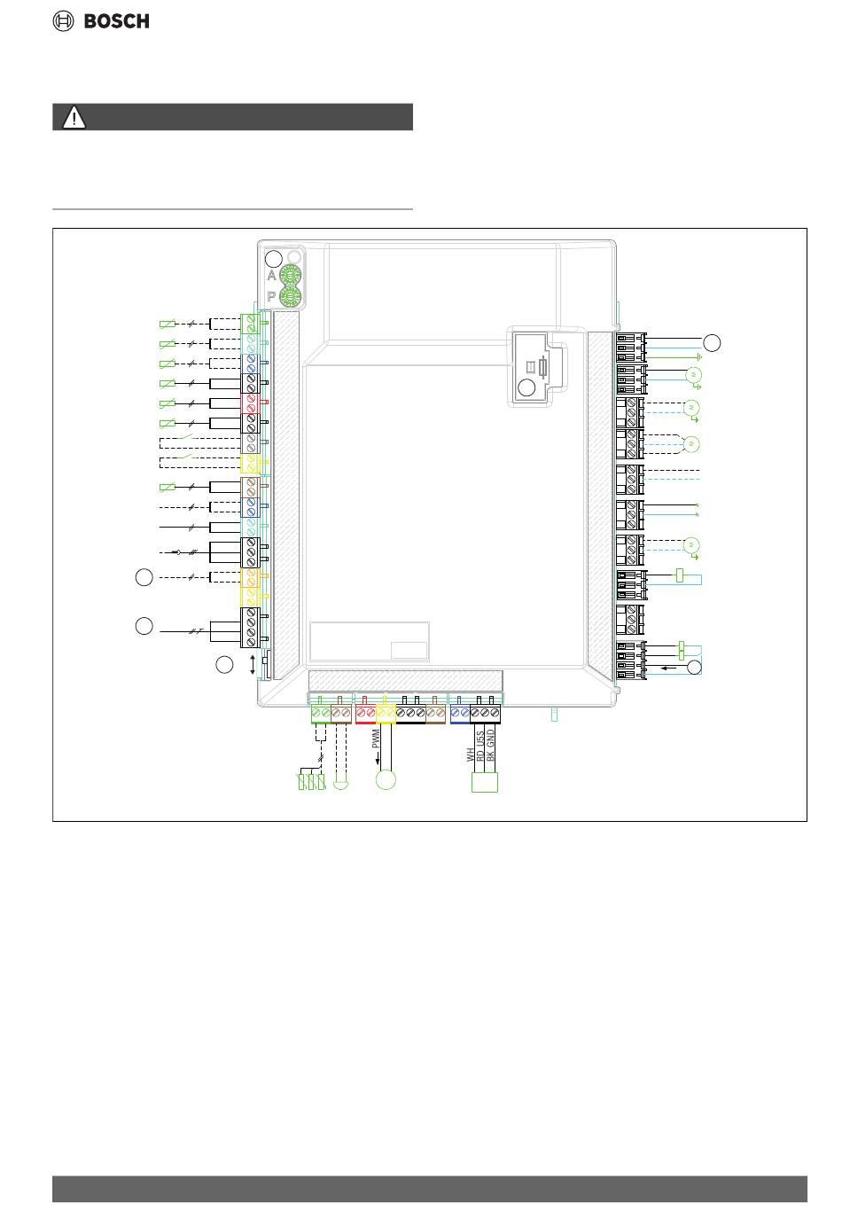
Afb. 35 Installatiemodule van de binneneenheid
[1]
A en P codeerschakelaars
[2]
Connectiviteit gateway (toebehoren)
[3]
CAN-BUS op buiteneenheid
[4]
CAN-afsluitschakelaar
[5]
Alarm elektrische verwarming (230 V~ ingangsspanning)
[6]
Voedingsspanning, 230 V~ van klemmenblokken
[7]
Zekering 5x20, 6,3 A traag
[T0] CV-circuit aanvoertemperatuursensor
[T1] Buitentemperatuursensor
[TW1] Warmwatertemperatuursensor
[TC0] Retourtemperatuursensor
[TC1] Aanvoertemperatuursensor (elektrische bijverwarming)
[TC3] Condensortemperatuursensor
[I1] Externe ingang 1
[I4] Externe ingang 4
[TR3] Temperatuur vloeibaar koelmiddel
[MK2]Condensatiesensor(en)
[Buzzer] Alarmzoemer (toebehoren)
Compress 3400i AWS – 6721827930 (2024/03)
1
Off
4
On
PC0
MD1
Buzzer
PWM
7
M
JR1
[PC0 PWM]PWM-signaal, primaire circulatiepomp
[JR1] Gasdruksensor koelmiddel
[FE] Oververhittingsalarm elektrische bijverwarming
[K2] Elektrische bijverwarming magneetschakelaar EE2
[K1] Elektrische bijverwarming magneetschakelaar EE1
[K3] Elektrische bijverwarming magneetschakelaar EE3
[PW2]Warmwatercirculatiepomp
[EA1] Aansluiting op klemmenblokken verwarmingskabel (toebehoren
buiteneenheid)
[PK2] Relais-uitgang koeling, 230 V~
[VW1]3-wegklep voor warmwater
[PC1] Circulatiepomp cv-installatie
[PC0] Primaire circulatiepomp
Technische gegevens
6
PC0
PC1
VW1
PK2
EA1
PW2
K3
K1
K2
5
FE
0010035898-003
37
Inhoudsopgave
loading

Deze handleiding is ook geschikt voor:

Cs3400iaws 10 e

Inhoudsopgave