Download Inhoudsopgave Inhoud Print deze pagina

Danfoss ADAP-KOOL AK-CH 650A Handleiding pagina 23

Capaciteitsregelaar voor waterchiller met twee zuiggroepen
Inhoudsopgave
Punt
S
Pt 1000 ohm/0°C
P
AKS 32R
3: Bruin
2: Blauw
1: Zwart
AKS 32
3: Bruin
2: Zwart
1: Rood
U
On/O
DO
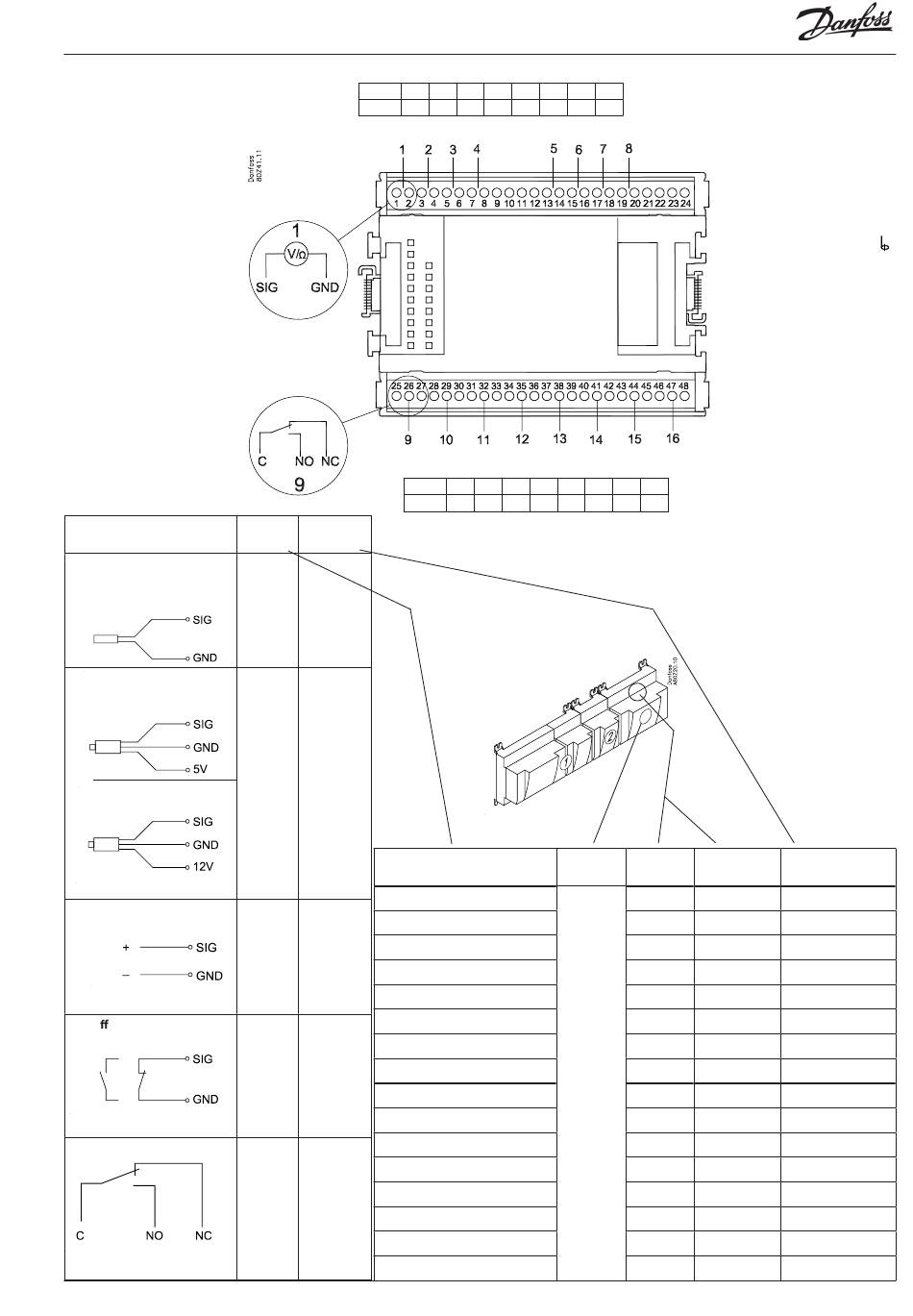
AK-CH 650A
Punt
1
Type
AI1
Punt
Type
Signaal
Signaal
type
S1
S2
Pt 1000
Saux1
Saux2
SsA
SdA
AKS 32R/
AKS 2050
P0A
-1 - xx bar
P0B
PcA
AKS 32
PcB
-1 - zz bar
0 - 5 V
0 - 10 V
...
Ext.
Actief op:
hoofd
schak.
Gesloten
/
Dag/
Open
Nacht
Deur
Actief op:
Comp 1
Comp 2
Aan
Vent.1
/
Alarm
Uit
Licht
Ontdooi-
ing
Capaciteitsregeling RS8GK310 © Danfoss 08-2015
2
3
4
5
6
7
8
AI2
AI3
AI4
AI5
AI6
AI7
AI8
9
10
11
12
13
14
DO1 DO2 DO3 DO4 DO5 DO6 DO7 DO8
Signaal
Module
Klem 9:
Klem 10:
Klem 21:
Klem 22:
Klem 11, 12, 23, 24
(Afscherming)
15
16
Punt
Klem
1 (AI 1)
1 - 2
2 (AI 2)
3 - 4
3 (AI 3)
5 - 6
4 (AI 4)
7 - 8
5 (AI 5)
13 - 14
6 (AI 6)
15 - 16
7 (AI 7)
17 - 18
8 (AI 8)
19 -20
9 (DO 1)
25 - 26 - 27
10 (DO 2)
28 - 29 - 30
11 (DO 3)
31 - 32 - 33
12 (DO 4)
34 - 35 - 36
13 (DO 5)
37 - 38 - 39
14 (DO6)
40 - 41 - 42
15 (DO7)
43 - 44 - 45
16 (DO8)
46 - 47 - 48
12 V
5 V
12 V
5 V
:
Signaal type /
Actief op
23
Inhoudsopgave
loading

Inhoudsopgave