Download Inhoudsopgave Inhoud Print deze pagina

Aansluiting Voedingsspanning - Danfoss Adap-Kool Ak-Ch 650A Handleiding

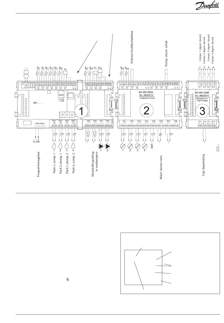
Capaciteitsregelaar voor waterchiller met twee zuiggroepen
Inhoudsopgave
Montage en bedrading - vervolg
De aansluitingen voor het voorbeeld zijn
hieronder te zien.
Waarschuwing
Houdt signaalkabels gescheiden van
hoog voltage kabels.
2. Aansluiting LON communicatienetwerk
De installatie van de datacommunicatie moet voldoen met de
eisen die worden gesteld in document RC.8A.C...

3. Aansluiting voedingsspanning

24 V, de voeding mag niet voor andere regelaars of apparaten
worden gebruikt. De klemmen mogen niet worden geaard.
4. Volg LED's
Zodra voeding op de regelaar wordt aangesloten zal de
regelaar een interne controle uitvoeren. Dit regelaar zal na
ongeveer 1 minuut klaar zijn zodra de LED 'Status' langzaam
knippert.
5. Als er een netwerk is
Stel het adres is en activeer de Service Pin
6. De regelaar kan nu gecon gureerd worden
AK-CH 650A
De afscherming van de drukopnemer-
kabels mogen alleen aan de kant van de
regelaar worden aangesloten.
Capaciteitsregeling RS8GK310 © Danfoss 08-2015
Interne communicatie tus-
sen de modules:
Knippert snel = fout
Continue aan = fout
■ Power
■ Comm
■ DO1
■ Status
■ DO2
■ Service Tool
■ DO3
■ LON
■ DO4
■ DO5
■ Alarm
■ DO6
■ DO7
■ DO8
■ Service Pin
Status uitgangen 1-8
Knippert langzaam = OK
Knippert snel = antwoord van gateway
in 10 minuten na netwerk-
installatie
Continue aan = fout
Continue uit = fout
Externe communicatie
Knippert = Actief alarm / niet opgeheven
Continue aan = Actief alarm / opgeheven
Netwerkinstallatie
43
Inhoudsopgave
loading

Inhoudsopgave